リーガロイヤルホテル広島
基本情報
- 施設種別
- 会議、展示会、宴会場施設・宿泊施設
- エリア
- 広島市内(紙屋町ゾーン)
- 所在地
- 〒730-0011
広島市中区基町6-78 - TEL
- 082-502-1121
- FAX
- 082-228-5415
- URL
- https://www.rihga.co.jp/hiroshima
- お問い合わせ
- hiroshima@rihga.co.jp
- 交通
- JR広島駅から市内電車にて紙屋町東下車徒歩約3分(所要時間約15分)
広島バスセンターすぐ隣 - 休館日
- なし
- 利用時間
- 9:00~21:00
施設概要
| 部屋の名称 | 収容人数 | 天井高(m) | 面積(m2) | インターネット | 付帯設備・備考 | |||
|---|---|---|---|---|---|---|---|---|
| シアター | スクール | 立食 | その他 | |||||
| ロイヤルホール | 1800 | 1100 | 2000 | 820 | 7 | 1380 | WiFi・有線 | 収容人数(その他):着席 |
| 分割ロイヤルホール(1) | 550 | 300 | 400 | 240 | 7 | 485 | WiFi・有線 | 収容人数(その他):着席 |
| 分割ロイヤルホール(2) | 500 | 250 | 350 | 240 | 7 | 435 | WiFi・有線 | 収容人数(その他):着席 |
| 分割ロイヤルホール(3) | 500 | 250 | 350 | 240 | 7 | 435 | WiFi・有線 | 収容人数(その他):着席 |
| クリスタルホール | 700 | 400 | 500 | 260 | 7 | 589 | WiFi・有線 | 収容人数(その他):着席 |
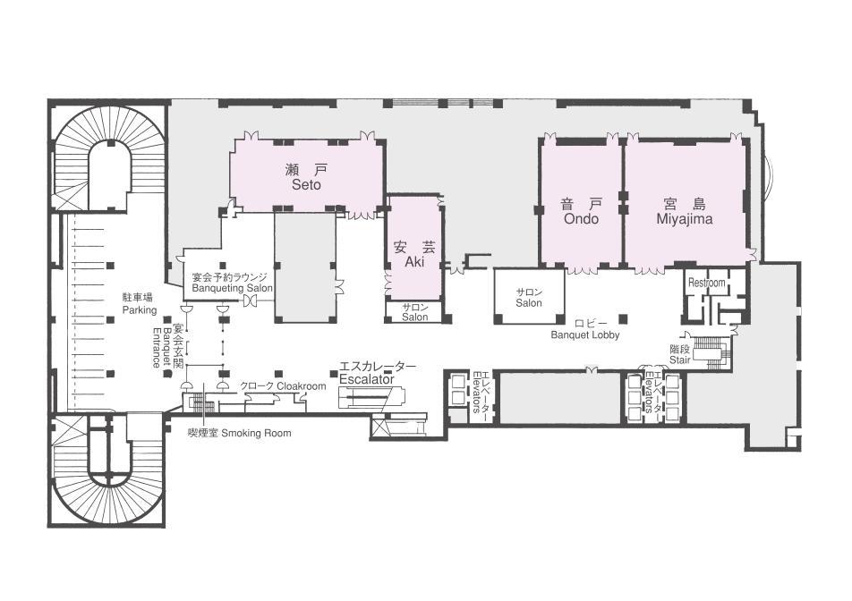
| 瀬戸 | 300 | 180 | 200 | 100 | 4.2 | 262 | WiFi・有線 | 収容人数(その他):着席 |
| 安芸 | 120 | 70 | 80 | 60 | 3.8 | 144 | WiFi・有線 | 収容人数(その他):着席 |
| 音戸 | 250 | 150 | 180 | 100 | 4.1 | 248 | WiFi・有線 | 調光設備
音響設備 収容人数(その他):着席 |
| 宮島 | 350 | 220 | 300 | 170 | 4.1 | 386 | WiFi・有線 | 調光設備
音響設備 収容人数(その他):着席 |
| 楓 | 50 | 40 | 40 | 40 | 3.2 | 97 | WiFi・有線 | 調光設備
音響設備 収容人数(その他):着席 |
| 松 | 40 | 30 | 40 | 30 | 3.3 | 73 | WiFi・有線 | 調光設備
音響設備 収容人数(その他):着席 |
| 竹 | 50 | 40 | 40 | 40 | 3.3 | 83 | WiFi・有線 | 調光設備
音響設備 収容人数(その他):着席 |
| 梅 | 40 | 30 | 40 | 30 | 3.3 | 67 | WiFi・有線 | 調光設備
音響設備 収容人数(その他):着席 |
| 橘 | - | - | - | - | 3.2 | 52 | WiFi・有線 | 調光設備
音響設備 |
| 福 | 30 | 20 | - | - | 3.1 | 56 | WiFi・有線 | - |
| 鶴 | 30 | 20 | - | - | 3.1 | 58 | WiFi・有線 | - |
| 華 | 25 | 18 | - | - | 3.2 | 45 | WiFi・有線 | - |
| 寿 | 25 | 18 | - | - | 3.2 | 42 | WiFi・有線 | - |
| ライラック、フリージア、カーネーション、ガーベラ、スイートピー、アイリス | 40 | 30 | 30 | 30 | 2.6 | 57 | WiFi・有線 | 調光設備
面積㎡:最大68㎡ 収容人数(その他):着席 |
| ダイヤモンドルーム | - | - | 150 | 80 | 3.3 | 206 | WiFi・有線 | 調光設備
音響設備 収容人数(その他):着席 |
| エメラルドルーム | - | - | 50 | 40 | 3.2 | 102 | WiFi・有線 | 調光設備
音響設備 収容人数(その他):着席 |
| ルビールーム | - | - | - | 20 | 3.2 | 93 | WiFi・有線 | 調光設備
音響設備 収容人数(その他):着席 |
| サファイアルーム | - | - | 60 | 50 | 3.2 | 113 | WiFi・有線 | 調光設備
音響設備 収容人数(その他):着席 |
| サファイアルーム(Ⅰ) | - | - | - | 20 | 3.2 | 54 | WiFi・有線 | 調光設備
音響設備 収容人数(その他):着席 |
| サファイアルーム(Ⅱ) | - | - | - | 30 | 3.2 | 59 | WiFi・有線 | 調光設備
音響設備 収容人数(その他):着席 |
| ラベンダー、オリーブ、バイオレット、エーデルワイス | - | - | - | 4~8 | 2.6 | 20~24 | WiFi・有線 | - |
宿泊施設
| 客室タイプ | ルーム数 |
|---|---|
| シングル | - |
| ツイン | 414 |
| ダブル | 56 |
| トリプル | - |
| スイート | 8 |
| その他 | 13 |
バリアフリールーム:3
その他情報
各交通拠点が集中する広島市内に位置し、国際会議、大規模な展示会など、ご利用シーンやご人数に適した31のバンケットルームをご用意。豊富な経験ときめ細やかな対応で、お客様のご要望に沿うプランをご提案いたします。
施設写真
1Fオールデイダイニング ルオーレ
3階宴会場フロアマップ
4Fクリスタルホール
4Fロイヤルホール
4階宴会場フロアマップ
32Fダイヤモンドルーム
33F スカイダイニング リーガトップ
33F レストラン シャンボール
エグゼクティブツインルーム
スタンダードツインルーム
32階宴会場フロアマップ
